Porzione di bifamiliare in vendita

Ponte Buggianese, Via A. Manzoni
€ 248.000
3 locali 3 locali
87 Mq 87 Mq
2 bagni 2 bagni

Porzione di bifamiliare in vendita

Ponte Buggianese, Via A. Manzoni

Descrizione annuncio

PONTE BUGGIANESE

VIAREGGINA LIBERA SU TRE LATI IN CLASSE ENERGETICA A/ 4

L’immobile è situato in una zona residenziale di Ponte Buggianese con tutti i principali servizi a portata di mano.

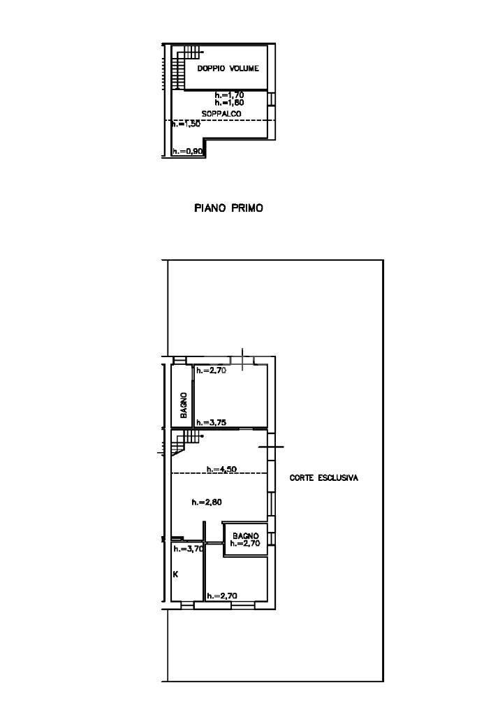
La viareggina si sviluppa su un unico piano oltre a soppalco per una superficie complessiva di circa 87 mq ed è corredata da un giardino privato di circa 178 mq, in parte a verde e in parte pavimentato, con la possibilità di parcheggiare l’auto grazie a un cancello carrabile automatico.

Si accede all’interno direttamente in un luminoso soggiorno con angolo cottura, dove troviamo una scala che ci conduce al soppalco finestrato di 14 mq a vista nella zona giorno.

Un ampio ripostiglio /lavanderia completa la zona giorno e vi è la possibilità di poterci ricavare un cucinotto separato e finestrato e allagare in questo modo il soggiorno.

La zona notte comprende una camera matrimoniale con bagno privato e finestrato con doccia, una camera singola ed un secondo bagno anch’esso con doccia.

L’immobile, di nuova costruzione, è stato realizzato con struttura in cemento armato antisismico e isolamento termico interno.
È inoltre dotato di un moderno sistema di ventilazione meccanica automatizzata, regolabile tramite telecomando, in grado di redistribuire il calore/freddo all’interno dell’abitazione in base alle esigenze termiche dei singoli ambienti.
È presente un impianto fotovoltaico da 1,5 kW, con possibilità di estensione, tre split con pompa di calore e funzione condizionatore, oltre ad autoclave.

Si tratta di una soluzione moderna, ideale per chi desidera vivere in un ambiente confortevole e ad alte prestazioni energetiche.

L’indirizzo esposto è indicativo.

Fissa un appuntamento per vedere l'immobile chiamando allo 0572.636862 o inviando un'email a ptho5 oppure visita la nostra pagina Facebook

Mostra tutto

Nelle vicinanze

Trasporto pubblico Trasporto pubblico
Viaroma1
Viaroma1
190 m
Viaromafr.1
Viaromafr.1
210 m
Scuole Scuole
Scuola dell'Infanzia Trovamici
280 m
Scuola Secondaria di I grado "Padre Filippo Cecchi"
720 m
Scuole
770 m
Scuola Primaria Gianni Rodari
780 m
Scuola dell'Infanzia Vione
1,5 Km
Farmacia Farmacia
Farmacia Al Ponte
180 m
Farmacia Mainardi
560 m
Farmacia
1,7 Km
Farmacia Checchia
1,8 Km
Supermercati Supermercati
Conad
770 m
DPiù
2,2 Km
Maury's
2,2 Km
Negozi Negozi
Giuntoli Leandro
260 m
Gabriella Sposa
350 m
Negozi
450 m
L'Angolo delle Delizie
460 m
Be' mi' tempi
500 m
Bar Bar
Blue Sky
120 m
Pasticceria Matteoni
160 m
Il punto
390 m
Bar Pasticceria del Ponte
490 m
I Gemelli
530 m
Ristoranti Ristoranti
Ristorante Il Desiderio
510 m
Meucci
590 m
Al Solito Posto
650 m
Il Maestrale
720 m
La Pentolaccia da Rodrigo
1,6 Km
Mostra tutto

Caratteristiche

Rif.:
61108877
Piano:
1 di 1 (Piano terra)
Posti auto:
2
Camere da letto:
2
Arredamento:
Assente
Condizionamento:
Autonomo
Mostra tutto
Prezzo Prezzo
€ 248.000
Rata mutuo Rata mutuo
€ 1.169 / mese
Spese annue Spese annue
€ 0
Proponi il tuo prezzoProponi il tuo prezzo

Classe Energetica

A4
A4
A4
A4
A4
A4
A4
A4
A4
EP globale non rinnovabile:
9.24 kW h/m² anno
EP globale rinnovabile:
50.35 kW h/m² anno
EP invernale del fabbricato:
EP estiva del fabbricato:
Anno di costruzione:
2025
Riscaldamento:
Autonomo
Tipo impianto:
Ad aria
Tipo alimentazione:
Pannelli

Ti interessa visionare l'immobile?

Fissa un appuntamento  Fissa un appuntamento

Richiedi informazioni

Clicca su Leggi per aprire l'informativa
* Questi campi sono obbligatori

Calcola il tuo mutuo

Semplice e senza impegno
Anticipo

( % )
Mutuo

( % )

pochi semplici passi

inserisci i tuoi dati
Questionario completato
Grazie per aver richiesto un appuntamento senza impegno con un nostro Consulente del Credito e Assicurativo.

Hai inserito correttamente tutti i dati necessari e a breve riceverai una e-mail con un link da convalidare per inviare i tuoi dati.
Affiliato
Studio Ponte Buggianese D.I.
Via Savorniana, 9 51019 Ponte Buggianese (PT)

Il nostro staff


  • Mariadomenica Carlucci
    Affiliata

  • Vanna Enas
    Responsabile

  • Marta Belliti
    Coordinatrice

  • Cataldo De Leo
    Collaboratore

  • Brisilda Miha
    Collaboratrice

  • Angela Piliero
    Collaboratrice
Via Savorniana, 9 51019 Ponte Buggianese (PT)
Zona: Ponte Buggianese-Chiesina Uzzanese
Mostra su mappa
Orari: dal lunedì al venerdì: 09.00 - 13.00/15.30 - 20.00; sabato: 09.00 - 13.00.
Affiliato
Studio Ponte Buggianese D.I.
Via Savorniana, 9 51019 Ponte Buggianese (PT)

2026 Tecnocasa Franchising S.p.A. - P. IVA 08365160152 - Via Monte Bianco 60/A 20089 Rozzano (MI). Ogni agenzia ha un proprio titolare ed è autonoma. Privacy policy | Policy utilizzo | Cookie policy