Rustico in vendita

Ponte Buggianese, Via Via dei Fiori
€ 40.000
10 locali 10 locali
415 Mq 415 Mq
1 bagno 1 bagno

Rustico in vendita

Ponte Buggianese, Via Via dei Fiori

Descrizione annuncio

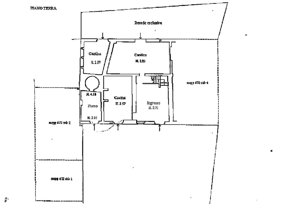
CHIESINA UZZANESE CONFINE PONTE BUGGIANESE

FABBRICATO RURALE LIBERO SU TRE LATI DA RISTRUTTURARE DIVISIBILE IN PIù UNITA' ABITATIVE

L’immobile è situato nel comune di Chiesina Uzzanese al confine con Ponte Buggianese e la località Vione, in una zona di prima campagna.

Il rustico ha una superficie complessiva di 414 mq ed è disposto su due livelli.

Correda il fabbricato la corte privata antistante il fabbricato di circa 140 mq.

Attualmente l’immobile è suddiviso catastalmente in quattro unità immobiliari, caratteristica che lo rende particolarmente interessante per diverse tipologie di utilizzo: dalla realizzazione di un'abitazione unifamiliare di ampia metratura, alla possibilità di creare fino a quattro unità abitative, ideale anche come investimento,

L’intero fabbricato si presenta completamente da ristrutturare, offrendo ampia libertà nella personalizzazione degli spazi interni, nella redistribuzione degli ambienti e nella valorizzazione delle caratteristiche, secondo le proprie esigenze abitative.

L'indirizzo esposto è indicativo.

Fissa un appuntamento per vedere l'immobile chiamando allo 0572.636862 o inviando un'email a ptho5 oppure visita la nostra pagina Facebook.

Mostra tutto

Nelle vicinanze

Trasporto pubblico Trasporto pubblico
Via Bramalegno, 128 Fr.
Via Bramalegno, 128 Fr.
150 m
Via Crociale Del Sarto,(20m<
Via Crociale Del Sarto,(20m<
1,3 Km
Scuole Scuole
Scuola dell'Infanzia Vione
160 m
Scuole
170 m
Scuola dell'Infanzia Arcobaleno
1,8 Km
Scuola dell'Infanzia Trovamici
1,9 Km
Scuola Secondaria di I grado "Padre Filippo Cecchi"
2,1 Km
Farmacia Farmacia
Farmacia Al Ponte
1,8 Km
Farmacia Mainardi
2,0 Km
Farmacia Checchia
2,5 Km
Supermercati Supermercati
Conad
2,3 Km
Negozi Negozi
Negozi
1,3 Km
Gabriella Sposa
1,8 Km
Giuntoli Leandro
1,8 Km
L'Angolo delle Delizie
1,8 Km
Be' mi' tempi
2,0 Km
Bar Bar
Quelli che...il bar
120 m
Bar
1,4 Km
Blue Sky
1,6 Km
Bar Michele
1,6 Km
Caffé d'angolo
1,7 Km
Ristoranti Ristoranti
Antico Toppato
50 m
Ristorante Da Coso
1,4 Km
Il nuovo Gattopardo
1,5 Km
Al Ristoro
1,7 Km
Ristorante Il Desiderio
1,8 Km
Mostra tutto

Caratteristiche

Rif.:
61170649
Piano:
Su più livelli di 2
Totale piani:
2
Posti auto:
1
Camere da letto:
9
Arredamento:
Assente
Mostra tutto
Prezzo Prezzo
€ 40.000
Rata mutuo Rata mutuo
€ 189 / mese
Spese annue Spese annue
€ 0
Proponi il tuo prezzoProponi il tuo prezzo

Classe Energetica

G
G
G
G
G
G
G
G
G
EP globale non rinnovabile:
244.86 kW h/m² anno
EP globale rinnovabile:
164.82 kW h/m² anno
EP invernale del fabbricato:
EP estiva del fabbricato:
Anno di costruzione:
1950
Riscaldamento:
Autonomo
Tipo impianto:
Ad aria
Tipo alimentazione:
Aria

Ti interessa visionare l'immobile?

Fissa un appuntamento  Fissa un appuntamento

Richiedi informazioni

Clicca su Leggi per aprire l'informativa
* Questi campi sono obbligatori

Calcola il tuo mutuo

Semplice e senza impegno
Anticipo

( % )
Mutuo

( % )

pochi semplici passi

inserisci i tuoi dati
Questionario completato
Grazie per aver richiesto un appuntamento senza impegno con un nostro Consulente del Credito e Assicurativo.

Hai inserito correttamente tutti i dati necessari e a breve riceverai una e-mail con un link da convalidare per inviare i tuoi dati.
Affiliato
Studio Ponte Buggianese D.I.
Via Savorniana, 9 51019 Ponte Buggianese (PT)

Il nostro staff


  • Mariadomenica Carlucci
    Affiliata

  • Vanna Enas
    Responsabile

  • Marta Belliti
    Coordinatrice

  • Cataldo De Leo
    Collaboratore

  • Brisilda Miha
    Collaboratrice

  • Angela Piliero
    Collaboratrice
Via Savorniana, 9 51019 Ponte Buggianese (PT)
Zona: Ponte Buggianese-Chiesina Uzzanese
Mostra su mappa
Orari: dal lunedì al venerdì: 09.00 - 13.00/15.30 - 20.00; sabato: 09.00 - 13.00.
Affiliato
Studio Ponte Buggianese D.I.
Via Savorniana, 9 51019 Ponte Buggianese (PT)

2026 Tecnocasa Franchising S.p.A. - P. IVA 08365160152 - Via Monte Bianco 60/A 20089 Rozzano (MI). Ogni agenzia ha un proprio titolare ed è autonoma. Privacy policy | Policy utilizzo | Cookie policy