Casa di corte in vendita

Buggiano, Via Tavolaia Fonda - Tavolaia
€ 120.000
Prezzo aggiornato
3 locali 3 locali
111 Mq 111 Mq
1 bagno 1 bagno

Casa di corte in vendita

Buggiano, Via Tavolaia Fonda - Tavolaia

Descrizione annuncio

BUGGIANO - PITTINI

TERRATETTO CENTRALE CON GIARDINO

L'immobile è situato nel comune di Buggiano, nella frazione di Pittini a circa un 1km dai principali servizi, come fermata del bus, negozi, farmacia e bar.

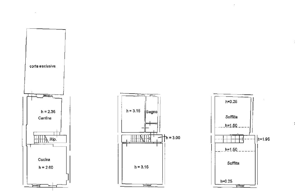
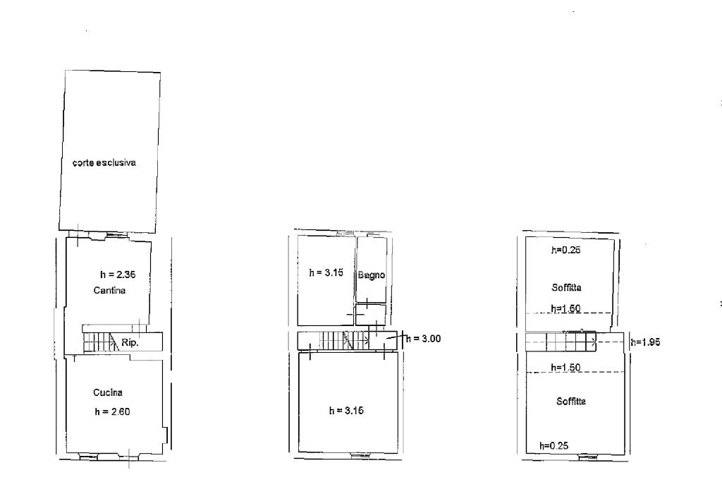
L'abitazione, libera su due lati, è dislocata su due livelli per una superficie complessiva di 111mq. Si accede alla proprietà tramite una resede pavimentata dove è possibile parcheggiare una macchina.

Al piano terra troviamo la zona giorno composta da soggiorno e cucina abitabile separata dotata di porta finestra per l' accesso al giardino privato posto sul retro della casa di 35 mq circa.

Si accede al piano primo tramite la scala interna dove troviamo la zona notte composta da camera matrimoniale, camera doppia e bagno finestrato. Completa la proprietà la soffitta praticabile di 50 mq.

L’immobile si presenta attualmente allo stato grezzo.

Nel 2024 sono stati completamente rifatti il tetto, la facciata ed è stato realizzato il vespaio aerato con igloo.

La proprietà necessita ancora della realizzazione degli impianti idrico-sanitario ed elettrico, dell’installazione dell’impianto di riscaldamento e della posa della fossa biologica.

L'indirizzo esposto è indicativo.

Fissa un appuntamento per vedere l'immobile chiamando allo 0572.636862 o inviando un'email a ptho5 oppure visita la nostra pagina facebook

Mostra tutto

Nelle vicinanze

Trasporto pubblico Trasporto pubblico
Viabuggianese124
Viabuggianese124
890 m
Viabuggianese107
Viabuggianese107
900 m
Borgo a Buggiano
Borgo a Buggiano
1,9 Km
Ricariche auto elettriche Ricariche auto elettriche
COOP Montecatini | EnelX
2,9 Km
Scuole Scuole
Scuola Primaria Casabianca
1,6 Km
Scuole
1,8 Km
Scuola primaria a tempo modulare Argene Bartolozzi
1,9 Km
Scuola materna Leonardo da Vinci
1,9 Km
Scuola primaria a tempo pieno Sandro Pertini
2,0 Km
Farmacia Farmacia
Farmacia Magnini
1,0 Km
Farmacia del Borgo
1,6 Km
Farmacia
1,8 Km
Farmacia Checchia
2,2 Km
Farmacia Sant'Antonio
2,5 Km
Supermercati Supermercati
Supermercati
1,8 Km
Coop
1,8 Km
DPiù
2,4 Km
Maury's
2,4 Km
Conad
2,6 Km
Negozi Negozi
Negozi
880 m
Cinelli Studio Store
1,6 Km
L'Angolo dei Sapori
1,7 Km
Mercerie Vania
1,7 Km
Panificio Fratelli Monti
2,0 Km
Bar Bar
Bar
1,4 Km
Disco dancing Full Stop
1,6 Km
Bar Tabacchi Casabianca
1,7 Km
La Mescita
1,7 Km
Bar Pasticceria Kafka
1,8 Km
Ristoranti Ristoranti
Lanterna Blu
1,7 Km
Il Maestrale
1,7 Km
IL Vecchino "Morino"
1,7 Km
Cookobio
1,8 Km
Ristoranti
1,9 Km
Mostra tutto

Caratteristiche

Rif.:
61178369
Piano:
Su più livelli di 2
Totale piani:
2
Posti auto:
1
Camere da letto:
2
Arredamento:
Assente
Mostra tutto
Prezzo Prezzo
€ 120.000
Rata mutuo Rata mutuo
€ 566 / mese
Spese annue Spese annue
€ 1
Proponi il tuo prezzoProponi il tuo prezzo

Classe Energetica

G
G
G
G
G
G
G
G
G
EP globale non rinnovabile:
123.00 kW h/m² anno
EP globale rinnovabile:
115.00 kW h/m² anno
EP invernale del fabbricato:
EP estiva del fabbricato:
Anno di costruzione:
1965
Riscaldamento:
Autonomo
Tipo impianto:
A stufa
Tipo alimentazione:
GPL

Prezzo ridotto di €1 (15%%)

Ti interessa visionare l'immobile?

Fissa un appuntamento  Fissa un appuntamento

Richiedi informazioni

Clicca su Leggi per aprire l'informativa
* Questi campi sono obbligatori

Calcola il tuo mutuo

Semplice e senza impegno
Anticipo

( % )
Mutuo

( % )

pochi semplici passi

inserisci i tuoi dati
Questionario completato
Grazie per aver richiesto un appuntamento senza impegno con un nostro Consulente del Credito e Assicurativo.

Hai inserito correttamente tutti i dati necessari e a breve riceverai una e-mail con un link da convalidare per inviare i tuoi dati.
Affiliato
Studio Ponte Buggianese D.I.
Via Savorniana, 9 51019 Ponte Buggianese (PT)

Il nostro staff


  • Mariadomenica Carlucci
    Affiliata

  • Vanna Enas
    Responsabile

  • Marta Belliti
    Coordinatrice

  • Cataldo De Leo
    Collaboratore

  • Brisilda Miha
    Collaboratrice

  • Angela Piliero
    Collaboratrice
Via Savorniana, 9 51019 Ponte Buggianese (PT)
Zona: Ponte Buggianese-Chiesina Uzzanese
Mostra su mappa
Orari: dal lunedì al venerdì: 09.00 - 13.00/15.30 - 20.00; sabato: 09.00 - 13.00.
Affiliato
Studio Ponte Buggianese D.I.
Via Savorniana, 9 51019 Ponte Buggianese (PT)

2026 Tecnocasa Franchising S.p.A. - P. IVA 08365160152 - Via Monte Bianco 60/A 20089 Rozzano (MI). Ogni agenzia ha un proprio titolare ed è autonoma. Privacy policy | Policy utilizzo | Cookie policy